SAN ANTONIO VISITOR’S CENTER + MUSEUM

Scope: Approx. 30,000 sq. ft. (8 Galleries)

This project was a collaboration between graphic, exhibit, and media designers at G&A.

Exterior Rendering Courtesy of Gensler

PROJECT STATEMENT

Two buildings at the historic project site in San Antonio, TX are undergoing renovations that will include 30,000 square feet of new exhibit spaces. With a rich past, the site has been home to indigenous communities, a mission, a fort, a battlefield, an Army depot, and an ever-evolving gathering place. G&A’s graphic, exhibit, and media designers were responsible for creating an experience that emphasizes the site’s layered history. Through exhibitry, mechanical interactives, and media the innovative design guides visitors through these memorable stories and calls attention to a range of perspectives. The experience asks visitors to consider what the site has meant to others and what it will mean to them as they add their voice to the ongoing conversation of how we remember its history.

GALLERY 2 + GALLERY 3

GALLERY 5

PROTOTYPES + MATERIALS

Please reach out and request the password to view process work from this project!

GALLERY 8

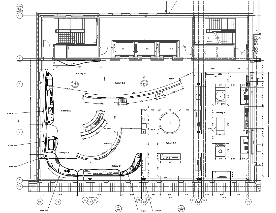
TECHNICAL DRAWINGS

Sample technical drawings from San Antonio Visitor’s Center + Museum, Gallery 2 + 3